10 smarta småhus: Tips för dig som vill bygga lite mindre
Sova, äta, umgås. I ett litet hus kan det finnas plats för allt. Här är tips på smarta hus för dig som vill bo lite mindre.
Att bo på liten yta, hur går det till? Hur får allt plats? Här får du 10 fina kåkar på max 90 kvadratmeter att kika på. Planlösningar visar hur man kan göra det bästa av ett litet hus.
1. Högt i tak och fri utsikt

Ett lofthus med högt i tak. Ryggåstaket i vardagsrum/kök och glaspartierna i gaveln ger en fantastisk rymd och en ljus och luftig känsla. Huset har två sovrum och ett loft om 20 kvadratmeter som kan användas till avkoppling och/eller ytterligare en sovplats. Från det öppna loftet som täcker halva huset är det fri sikt genom det stora gavelfönstret.

Agö 40–65
Hustyp: 1,5 planshus.
Antal rum: 3 + loft över halva huset.
Boyta: 65,1 kvm.
Leverantör: Hudikhus, 08–604 83 66, www. hudikhus. se
Pris: Från 645 000 kronor.
Läs också: 14 förtrollande minihus som du måste se!
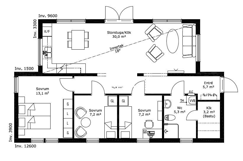
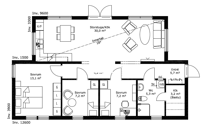
2. Funkis med mycket rymd

Liten enkel villa i funkisstil med hög standard och blandat liggande och stående panel för ett mer livfullt yttre. Sovrummen ligger mot husets baksida och skiljs av från sällskapsrummet, som har snedtak för större volym. De stora öppningarna mot i huset ger mycket ljus och rymd. Från entrén har man fri sikt genom huset. Klädkammaren kan enkelt göras om till bastu.

Första lyckan
Hustyp: 1,5 planshus.
Antal rum: 3 + storstuga (sällskapsrum).
Boyta: 80,8 kvm.
Leverantör: Borohus, 0325–186 20, www. borohus. se
Pris: Från 1 650 000 kronor (nyckelfärdigt i Göteborgsregionen).
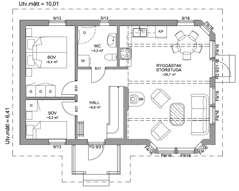
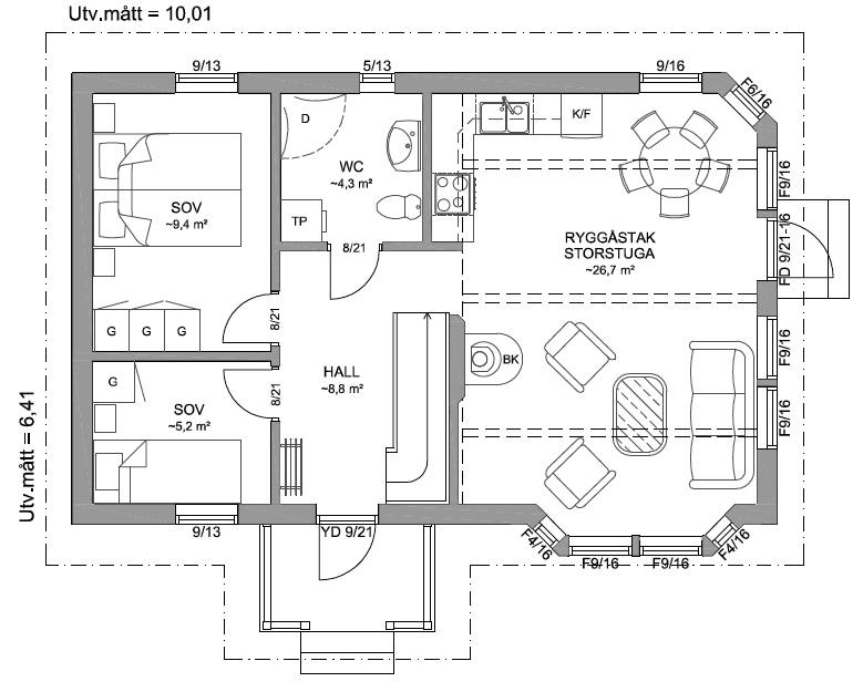
3. Avskalat för landsbygden

Ett avskalat och enkelt hus som med sin enkla form passar bra i på landsbygden eller i skogen. Öppen och rymlig planlösning för storstuga och kök med hög takhöjd samt en mer avskild del för sovrummen. Det öppna loftet och höga fönster gör att ljuset sprider sig i huset. Altan om 25,8 kvm längs ena långväggen ingår.

Ladan 82
Hustyp: 1,5 planshus med loft.
Antal rum: 4.
Boyta: 81,8 kvm (entréplan 64,3 kvm, loft 23,1 kvm).
Leverantör: Värsåsvillan, 0511-34 56 00, www. varsasvillan.se
Pris: Från 868 000 kronor.
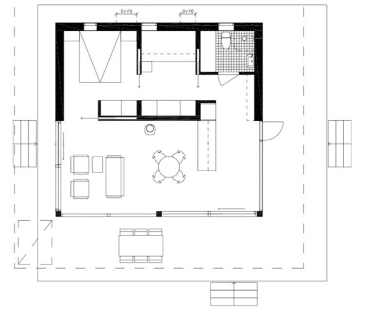
4. Alltid extra nära naturen

En helglasad storstuga med altan direkt utanför utgör halva ytan av detta kvadratiska hus/stuga. Glasytor och skjutdörrar gör att naturen kommer extra nära och ger fri utsikt. Ett ovanlig ljust hus som kan ge trivsel under all årstider. Köket är öppet med gott om utrymme. Vid sidan av ett större sovrum finns ett till för två eller tre personer. Skjutdörrarna sparar yta, men ger dålig ljudisolering till sovrummen. Om mer yta och utsikt önskas kan huset förses med takaltan.

KS
Hustyp: 1-planshus.
Antal rum: 2 sovrum + storstuga.
Boyta: 60 kvm.
Leverantör: Sommarnöjen, 08-410 715 00, www. sommarnojen.se
Pris: Från 2 298 000 kronor.
Läs också: Smart på 25 kvadrat: 9 snygga attefallshus
5. Enkelt med många möjligheter

Ett mindre, kvadratiskt hus. Enkel planlösning med stora öppningar mellan vardagsrum och kök. Toalett med plats för tvättmaskin. Husets planlösning går att ändra, om exempelvis vardagsrummet önskas större kan sovrumsväggen flyttas. Huset är också möjligt att bygga till på olika sätt.

Ljusne 61
Hustyp: 1-planshus.
Antal rum: Sovrum och vardagsrum.
Boyta: 61,4 kvm.
Leverantör: Ljusnehus, 08-410 715 00, www. ljusnehus. se
Pris: Från 590 000 kronor.
Läs också: 11 fina miniväxthus på liten yta
6. Två rum kan bli sju

I grunden ett enplanshus med två rum och kök. Om behov finns kan boytan mer än dubbleras vid inredning av övervåningen och ge upp till totalt sju rum. Husets entré leder direkt till både kök och vardagsrum. Sovrummet är placerat mer avskilt intill badrummet.

Villa Vimmerby
Hustyp: 1-planshus.
Antal rum: 2.
Boyta: 81 kvm (med inredd övervåning 141 kvm).
Leverantör: SmålandsVillan, 010-434 16 90, www. smalandsvillan. se
Pris: Från 1 328 000 kronor.
7. Rymligt och glasat

Ett hus som präglas av en storstuga med gott om plats för social matlagning, matbord och soffgrupp. Därutöver finns ett par rymliga sovrum och möjlighet till flera utgångar mot altaner som ansluter till tomten. Då nästan hela huset är glasat från golv till tak krävs kanske en tomt utan insyn. Formen kan lätt anpassas efter platsen och huset fungerar lika bra som enkel länga eller i T- eller L-form.

Landet 70
Hustyp: 1-planshus.
Antal rum: 3.
Boyta: 70 kvm.
Leverantör: Sommarnöjen, 08-410 715 00, www. sommarnojen.se
Pris: Från 2 283 000 kronor.
8. Känsla av torp och idyll

Ett hus som ger bra trivsel och lite känsla av torp och idyll. Ett burspråk sticker ut vid köket, verandan är under tak och gavelspetsarna har snickarglädje. Den öppna storstugan har 5,5 meter till taknocken, sovrummen är välplanerade och i köket finns en avskild matplats vid burspråket. Loftet är praktiskt för allmän avkoppling. Om så önskas kan loftet också byggas om till ytterligare två sovrum.

Vallersvik
Hustyp: 1-planshus med loft.
Antal rum: 3.
Boyta: 87,7 kvm (inklusive loft på 27,9 kvm).
Leverantör: Värsåsvillan, 0511-34 56 00, www. varsasvillan.se
Pris: Från 855 000 kronor.
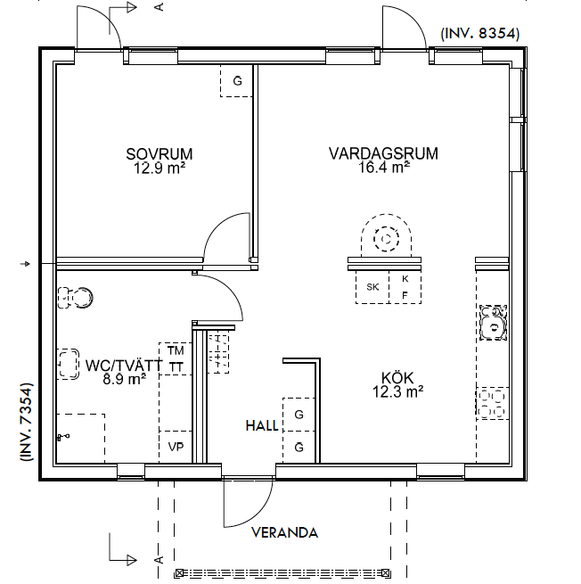
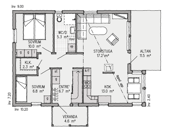
9. Behändigt och trivsamt

Ett enplanshus som passar både som permanentboende eller som fritidshus. Den effektiva planlösningen erbjuder det som en eller två personer behöver för ett trivsamt boende. I det stora klädrummet finns gott om förvaringsplats. Tillsammans skapar köket, matplatsen och vardagsrummet stugatmosfär.

Fågelsången
Hustyp: 1-planshus.
Antal rum: 2
Boyta: 67,6 kvm
Leverantör: MammutHus, 073-380 09 76, www. mammuthus. se
Pris: Cirka 1,1 miljon kronor.
10. Litet men mysigt

I grunden en liten stuga med förstukvist och altan under tack som gott och väl kan fungera som ett mysigt permanentboende för den som inte kräver så mycket utrymme. Kök och matplats är integrerade i storstugan som upptar hälften av hela boytan. Den öppna planlösningen ger rymd och främjar samvaro.

Långvind 70
Hustyp: 1-planshus.
Antal rum: 2 + storstuga.
Boyta: 61 kvm (plus altan 10 kvm)
Leverantör: Hälsinge Fjäll- & Kusthus, 0278-65 06 15, www. halsinge. se
Pris: Från 428 000 kronor.











